ZADAR / ŽUPANIJA
FOTO / Za izgradnju OŠ Murvica – Briševo 8.776.776,63 eura iz NPOO-a
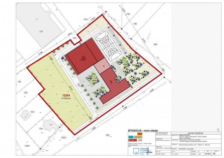
Nova školska zgrada imala bi ukupno devet učionica i drugih pratećih sadržaja te dvodijelnu školsku sportsku dvoranu.
Iz Nacionalnog plana oporavka i otpornosti »Izgradnja, rekonstrukcija i opremanje osnovnih škola za potrebe jednosmjenskog rada i cjelodnevne škole« za izgradnju OŠ Murvica – Briševo dodijeljena su bespovratna sredstva u iznosu od 8.776.776,63 eura.

Iako se nalaze na području općine Poličnik učenici područnih škola Murvica i Briševo organizacijom školskog sustava već dugi niz godina pohađaju OŠ Smiljevac, a učenici PŠ-a Dračevac Ninski pohađaju OŠ Bartola Kašića. PŠ Briševo pohađaju 32 učenika, a PŠ Murvica 41 učenik. Radi se o učenicima nižih razreda, dok učenici viših razreda iz ovih mjesta svakodnevno putuju u Zadar.

Kada se izgradi nova PŠ Murvica – Briševo, učenici spomenutih triju područnih škola novom će Odlukom o upisnom području postati učenici područne škole OŠ Poličnik. Time bi se rasteretile OŠ Smiljevac i manjim dijelom OŠ Bartula Kašića, postigle bi se financijske uštede te bi se smanjio pritisak na učenike predmetne nastave, a uz izgradnju nove OŠ Crvene kuće u Zadru bi se svim spomenutim školama omogućilo uvođenje jednosmjenskog rada i programa cjelodnevne škole.


ZADAR / ŽUPANIJA
FOTO / Camino Zadar: Dva rođendanska dana koja su dotaknula dušu i povezala ljude
Hodočasnička ruta Zadarske županije kroz Kožino, Nin i Ljubač potvrdila status jedinstvenog duhovnog i turističkog doživljaja.

Zadarska dionica Camina proslavila je svoj prvi rođendan na način koji nadilazi klasična događanja kroz dva dana ispunjena radošću, mirom, brigom za bližnje i dubokim ljudskim susretima. Ono što se odvijalo na relaciji Kožino – Nin – Zukve, Vrsi – Ljubač nije bilo tek hodočašće, već iskustvo koje mijenja život i obogaćuje.
Sve je započelo u Kožinu, gdje su hodočasnici dan započeli svetom misom, prožetom pjesmom i radosnim glasovima koji su odjekivali već u ranim jutarnjim satima. Posebnu notu dao je svećenik iz Poljske, čija je srdačnost iznenadila i oduševila okupljene. „Ovdje misu doživiš drugačije”, komentirali su hodočasnici, svjesni da su zakoračili u nešto posebno.

Briga za hodočasnike bila je vidljiva na svakom koraku. Turistička zajednica Zadra dočekala ih je kavom i zalogajima, znajući da su mnogi stigli bez doručka. U Kožinu je jedna mještanka uz crkvu otvorila vrata svoga doma kako bi hodočasnicima omogućila predah i pripremu za put što je gesta koja najbolje opisuje duh ovog Camina i dobrodošlice lokalnog čovjeka.
Prorokovići – simbol tihe, ali snažne dobrote
Na ruti su posebno mjesto zauzeli Prorokovići, obitelj koja je i ove godine nastavila tradiciju nesebične dobrodošlice. Njihov pristup je nenametljiv, ali duboko iskren. Nude utočište, okrjepu i osjećaj da je hodočasnik uvijek dobrodošao.
U samom srcu mjesta u kapelici svetog Ante se čuva poseban znak, školjka svetog Jakova ukrašena crvenim galicijskim križem, poznatim simbolom raspoznavanja Camino hodočasnika. Ona nije tek ukras već tihi svjedok duboke povezanosti Camino hodočasnika i mještana Prorokovića. Dočekuje svakoga tko prolazi ovim putem poručujući bez riječi da je stigao na mjesto gdje su vrata i srca otvorena.

Upravo zato Prorokovići s ponosom nose titulu koju su im sami hodočasnici dali, „prijatelji Camino hodočasnika”, mjesto gdje se ne nudi samo odmor, već i osjećaj pripadnosti.
„Ponekad ih vidimo umorne kako prolaze, ali već na izmaku iz sela pa nam je žao što ih nismo uspjeli zaustaviti”, kažu mještani Prorokovića, svjedočeći o brizi koja nadilazi formalno gostoprimstvo. Upravo zbog takvih ljudi, Camino Zadar dobiva svoje „anđele na putu” jer mještani Prorokovića to uistinu jesu.
Nin – grad susreta, emocija i ponosa
Dolazak u Nin bio je ispunjen emocijama. Ulaskom u crkvu sv. Anselma hodočasnici su osjetili olakšanje i ponos. Mnogima je to bilo prvo hodočašće, a riječi „uspjeli smo” odzvanjale su pred crkvenim vratima.
Toplu dobrodošlicu pružio je lokalni župnik, don Jerko Vuleta govoreći o bogatoj povijesti kraljevskog grada Nina, dok je završnim blagoslovom hodočasnika zaokružio dan. No iznenađenjima tu nije bio kraj jer na trgu ih je dočekala Turistička zajednica Nina sa lokalnim specijalitetima i rođendanskom tortom.

“Kum i kuma” Camino Zadra svjedoče uspjeh sinergije partnera
Miris i okus tradicionalnog padišpanja, Ninske torte mnoge je vratio u djetinjstvo. Poseban trenutak bio je kada su svjećicu na torti ugasili „kum i kuma” projekta, Ante Sjauš, pročelnik UO za gospodarstvo i turizam Zadarske županije i Marija Pražen, koordinatorica Camino Zadar projekta iz Bratovštine svetog Jakova Hrvatska, simbolično obilježavajući godinu dana rasta i razvoja ove hodočasničke rute.
U tom trenutku na trg su stigle i hodočasnice iz Slovenije, koje već danima hodaju Camino Zadar dionicom od Pirovca prema Selinama. Njihovo svjedočanstvo potvrdilo je da Camino Zadar živi, spaja i mijenja ljude.
Drugi Camino dan: vjera, priroda i nova otkrića
Drugi dan započeo je svetom misom u Ninu, uz raspjevani župni zbor i snažne riječi podrške župnika prema hodočasnicima kojima je udijelio blagoslov sv Jakova. Nakon doručka, hodočasnici su nastavili put pored kipa Grgura Ninskog i najmanje katedrale na svijetu, preko kamenog mosta prema Zukvama.
Ondje ih je dočekalo novo iznenađenje, otvorena crkva sv. Jakova i okrjepa koju je pripremila Turistička zajednica Vrsi. Salata od svježe ulovljene sipe oduševila je hodočasnike iz svih krajeva Hrvatske. Direktorica tz Vrsi je rekla nekoliko riječi o samoj crkvi, mjestu i župi a teolozi iz Bratovštine malo više o samom svetom Jakovu kada je većina hodočasnika saznala da je sveti Jakov bio prvi apostol mučenik što je ostavio je snažan dojam na njih jer do sad nisu imali tu spoznaju..

Put ih je dalje vodio kroz raznolike krajolike od makadama i šumskih puteva do pogleda na Velebit i morsku obalu. Susreti s domaćim životinjama i podrška na stazi, poput dostave vode usred šume, dodatno su osnažili zajedništvo i posvjedočili koliko organizatori brinu o hodočasnicima.
Ljubač – završetak koji se pamti cijeli život
U Ljupču, u crkvi sv. Martina, hodočasnike je dočekao župnik don Ivica Jurić, iskusan hodočasnik Camina do Santiaga. Njegova svjedočanstva i otvorenost dodatno su inspirirali pridošle hodočasnike.
Nakon blagoslova, uslijedio je trenutak za koji su mnogi opisali da je neopisiv i neprocjenjiv, zajednički obrok u župnoj kući, pripremljen uz pomoć mnogih župljana. Don Ivica je osobno kuhao paštu za hodočasnike, a stolovi su bili prepuni razne hrane i topline mnoštva očiju župljana spremnih na pomoć hodočasnicima ako zatreba.
„Da smo tražili, dobili bismo i ptičjeg mlijeka”, kroz osmijeh su govorili hodočasnici. No više od hrane, ono što ih je dirnulo bila je prisutnost župne zajednice, zajedništvo koje briše granice između stranaca i pretvara ih u braću i sestre.

Camino koji ostaje u srcu
Ovo dvodnevno slavlje pokazalo je da Camino Zadar nije samo ruta, to je živa priča satkana od ljudi, susreta i emocija. Od Kožina do Ljupča, svaki korak bio je ispunjen brigom, toplinom i iskrenom dobrodošlicom.
Hodočasnici su otišli kućama umorni, ali ispunjeni s obećanjem da će se vratiti.
Jer Camino Zadar nije samo put kojim se hoda.
To je put koji se nosi sa sobom.
Camino Zadar dane organiziraju Zadarska županijska turistička zajednica i lokalne turističke zajednice TZ Zadra, Nina, Biograda na Moru, Starigrada, Pakoštana, Sukošana, Sv. Filipa i Jakova, Vrsi, Ražanca, Posedarja i Jasenice u suradnji s Bratovštinom sv. Jakova Hrvatska.
Nositelj projekta Camino Zadar je Zadarska županija u suradnji s Bratovštinom sv. Jakova Hrvatska i lokalnim turističkim zajednicama.



ZADAR / ŽUPANIJA
OBAVIJEST / U utorak bez vode šest ulica u Zadru, te dio Ražanca, Ljupča i Radovina
Zbog radova na vodoopskrbnom sustavu u gradu Zadru dana 23.04.2026. (četvrtak) u vremenu od 09:00 h do 13:30 h bez vode će biti potrošači u ulici Marijane Radev, kućni brojevi od 18 do 34.
Zbog radova na vodoopskrbnom sustavu, dana 21.04.2026. (utorak) u vremenu od 08:00 h do 14:00 h opskrba vodom će biti privremeno obustavljena u slijedećim mjestima:
Ražanac – predio Podvršje
Ljubač – predio Stojići
Radovin – ulice Miočići, Rudarići, Dokoze, Romići, Bolonje.
Poteškoće sa opskrbom moguće su i u ostalim predjelima mjesta Ražanac i u mjestu Rtina.
Zbog radova na vodoopskrbnom sustavu u gradu Zadru dana 21.04.2026. (utorak) u vremenu od 08:00 h do 12:00 h bez vode će biti potrošači u gradu Zadru u slijedećim ulicama:
– Nikole Tesle
– Božidara Adžije
– Privlačka
– Ražanačka
– Antuna Matije Reljkovića, od k. br. 3 do k. br. 17 A
– Vrška
ZADAR / ŽUPANIJA
Katolička gimnazija Ivana Pavla II. Zadar potiče učenike na upis u njihovu školu
Katolička gimnazija Ivana Pavla II. Zadarobratila seučenicima osmih razreda koji su pred odlukom upisa u srednju školu i njihovim roditeljima da se upoznaju s radom njihove škole i mogućnošću upisa jednog od tri smjera u toj školi.
„Uskoro se bliže prve prijave u sustav te prijave odabranih srednjoškolskih programa. Pred učenicima osmih razreda je velika odluka, stoga objavljujemo da se sve informacije o našoj školi mogu saznati na mrežnoj stranici https://www.gimnazija-ivanapavla.hr/ i na profilima društvenih mreža koje Gimnazija ima na Facebooku, Instagramu i TikToku“, poručila je s. Ana Lipovac, ravnateljica Katoličke gimnazije.
Katolička gimnazija nudi tri srednjoškolska smjera: program klasične, prirodoslovne i opće gimnazije.
Za program klasične i opće gimnazijebodovi koji se vrednuju su prosjek svih zaključnih ocjena svih predmeta od 5. do 8. razreda OŠ; uspjeh u 7. i 8. razredu OŠ iz hrvatskog jezika, matematike, prvog stranog jezika, povijesti i geografije, a predmet po izboru škole je biologija.
Za program prirodoslovne gimnazijebodovi koji se vrednuju su prosjek svih zaključnih ocjena svih predmeta od 5. do 8. razreda OŠ; uspjeh u 7. i 8. razreduOŠ iz hrvatskog jezika, matematike, prvog stranog jezika, biologija i kemija, a predmet po izboru škole je fizika.
Pravo na izravan upis ili dodatne bodove ostvaruju kandidati na osnovi rezultata koje su postigli u znanju iz hrvatskog jezika, matematike, prvog stranog jezika, povijesti, geografije, biologije i kemije. Natjecanje po izboru škole jevjeronaučna olimpijada – natjecanje iz vjeronauka.
Klasična gimnazija je za učenike koji imaju sklonosti, želje i ljubavi više upoznati pravo, filozofiju, povijest, teologiju, književnost, jezike i kulturu. Prirodoslovnu gimnaziju preporučuju učenicima s afinitetima za medicinu, farmaciju, inženjerstvo, biologiju, matematiku. Opća gimnazija je za sve koji žele široko obrazovanje iz svih područja, s mogućom fakultativnom nastavom.
Među razlozima zašto upisati Katoličku gimnaziju, u školi ističu njegovanje kršćanskih i humanističkih vrijednosti, nastavu samo u jutarnjoj smjeni i suvremenu opremljenost školu praktikumima i nastavnim sredstvima.
Katolička gimnazija povezuje svoju bogatu tradiciju kao najstarija odgojno-obrazovna ustanova u Zadarskoj županiji sa suvremenim obrazovanjem, a smještena je u povijesnoj jezgri središta Zadra na poluotoku.
„U Katoličkoj gimnaziji Ivana Pavla II. redovita i fakultativna nastava, izvannastavne aktivnosti, dodatna i dopunska nastava te pripreme za maturu izvode se u jutarnjoj smjeni što, uz dobru lokaciju, uvelike olakšava učenicima organizaciju dana. Prednost je i velika sportska dvorana u kojoj se izvodi nastava Tjelesne i zdravstvene kulture, također u sklopu rasporeda redovne nastave. Nastava se izvodi u suvremeno opremljenim školskim učionicama i praktikumima kemije/biologije, fizike i informatike. Na raspolaganju su i kuhinja, dnevni boravak te velika knjižnica. U potpunosti je zastupljen stručni nastavnički kadar iz svih predmeta, a u školi rade stručni suradnici pedagog i psiholog“, istaknula je ravnateljica Lipovac, rekavši da se u školi njeguju izvrsnost i intelektualna znatiželja.
Odgoj i obrazovanje u gimnaziji obogaćeni su brojnim izvannastavnim aktivnostima i terenskom nastavom. „Uz dodatnu i dopunsku nastavu iz temeljnih nastavnih predmeta, djeluju i dramska skupina, kreativna radionica ‘Amfora’, učenička web redakcija, školski zbor, likovna radionica, mladi knjižničari, volonterski klub ‘Kapljica’, redakcija školskog lista, English club, ekološka grupa, mladi geografi itd.
Škola promiče socijalno angažirani rad, volonterske i ekološke djelatnosti i edukativne sadržaje i izvan škole, za što je dobila brojne nagrade i priznanja. Tijekom nastavne godine profesori dodatno rade s maturantima pripreme za državnu maturu“, istaknula je s. Ana.
Gimnazija surađuje s različitim školama, kulturnim i obrazovnim institucijama, udrugama i pojedincima te je u gimnaziji i vježbaonica za studente Filozofskog fakulteta iz mnogih školskih predmeta. Škola je i domaćin županijskim i državnim natjecanjima.
Brojne terenske nastave organiziraju diljem Hrvatske te redovitu nastavu u prirodi. U sportskoj dvorani i teretani izvodi se fakultativna nastava korektivne gimnastike i fitnessa.
„Posebnost naše Gimnazije su i studijska putovanja za sve učenike škole u redovitim destinacijama: Rim, Barcelona, Prag, Atena. Učenici imaju prilike sudjelovati u brojnim organiziranim aktivnostima prema svojim afinitetima te na natjecanjima iz svih predmeta“, rekla je ravnateljica, istaknuvši da Gimnazija priprema učenike za uspješan nastavak školovanja na sveučilištima u Hrvatskoj i inozemstvu, obrazujući i odgajajući pojedince za društvo u kojem žive.
Obrazovni sadržaji prožeti su humanim i srdačnim odnosima te u Gimnaziji djeluju tri školska humanitarna fonda; najpoznatiji je „Gorušičino zrno“ kojim se materijalno pomažu učenici slabijeg imovinskog stanja za vrijeme srednje škole i studija, organiziranjem različitih humanitarnih akcija.
Rastu u kršćanskoj zrelosti učenika doprinose i jednodnevne i višednevne duhovne obnove. Tri puta tjedno, učenicima u školi je dostupan duhovnik.
„U skladu s naukom Katoličke Crkve, škola osobitu pozornost pridaje odgoju za trajne životne i općeljudske vrijednosti, za prihvaćanje i poštovanje različitosti te je škola otvorena učenicima svih vjerskih svjetonazora. Potaknuta idejama i entuzijazmom sv. Ivana Pavla II., Katolička gimnazija nastavlja odgajati i obrazovati nove generacije pod geslom ‘Zajedno stvarajmo bolji svijet’“, poručila je ravnateljica, s. Ana Lipovac.
I.G.







